【 先行販売 】建売相談会@モデルハウス
このイベントは現在非公開です。
見どころ Point
【 先行販売開始!】建売相談会
京都府亀岡市千代川町小林前田にて、
2025年7月に完成を予定している建売住宅の先行販売をスタートしました!
イシンホームこだわりの設備をセット価格でご購入いただけるチャンスです。

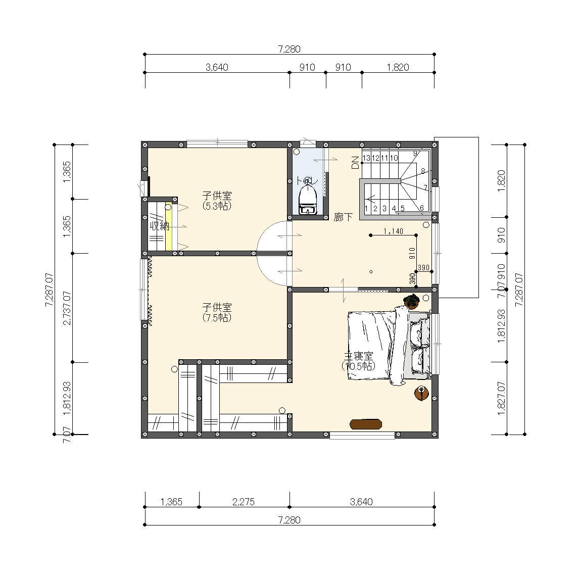
(※家具、小物を入れた場合のイメージパースです。)
●セット価格
太陽光10.32kw + 蓄電池付
土地(36.58坪)+建物(32.05坪)+ 外構 + 消費税 = 3,850万円(税込)
→ 月々の支払いは実質 8.5万円


ーーー
相談会では、実際のモデルハウスを見学しながら、専門のスタッフがあなたの疑問にお答えします。
家づくりに関する不安や疑問を解消し、理想の住まいを見つけるための具体的なアドバイスを受けていただけます。
ご参加は無料ですが、事前にご予約が必要です。
定員に限りがございますので、早めのご予約をお待ちしております。
イベントマップ
京都府亀岡市千代川町小林植田
キャンペーン情報
●新規ご予約&ご来場特典
・はじめてのお家づくりに役立つ資料本一式
・QUOカード
イベント概要
| 開催日時 | 〜開催中 |
|---|---|
| 開催場所 | 京都府亀岡市千代川町小林植田 |
| イベント種類 | 相談会 |
| 会社名 | 株式会社 アサヒ |