NewOPEN!!女性目線の家「Risoing」in 善通寺市原田町
香川
香川県善通寺市原田町
〜開催中
予約可能日時
| 日 | 月 | 火 | 水 | 木 | 金 | 土 |
|---|---|---|---|---|---|---|
| 1- | 2- | 3- | 4- | 5- | 6- | 7- |
| 8- | 9- | 10- | 11- | 12◎ | 13◎ | 14◎ |
| 15◎ | 16◎ | 17- | 18- | 19◎ | 20◎ | 21◎ |
| 22◎ | 23◎ | 24- | 25- | 26◎ | 27◎ | 28◎ |
| 29◎ | 30◎ | 31- |
こんな人にオススメ
- 3K/DK/LDK
- 4K/DK/LDK
- 木造住宅
- スマートハウス・省エネ住宅
- デザイン住宅
- 高気密・高断熱素材使用
- 洋風スタイル
- モダン
- シンプル
- 子育て
- 家事動線
- 収納
- 駐車場あり
イベントマップ
香川県善通寺市原田町
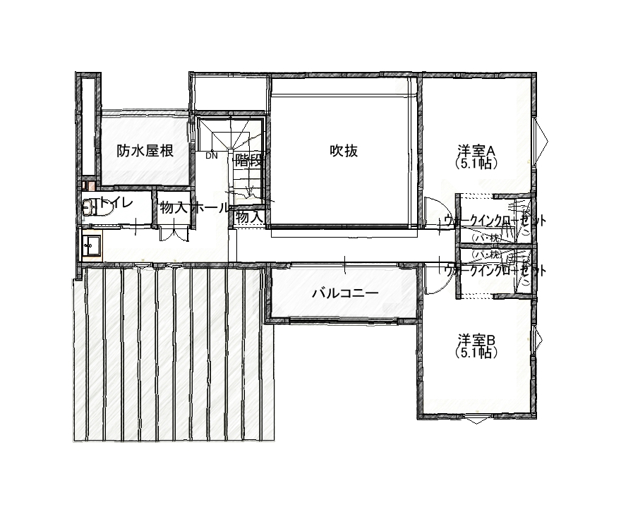
間取り図
イベント概要
| 開催日時 | 〜開催中 |
|---|---|
| 開催場所 | 香川県善通寺市原田町 |
| イベント種類 | 完成見学会 |
| 会社名 | 株式会社明徳ホーム |















