【 OPEN HOUSE 】完成見学会in亀岡市千代川町
このイベントは現在非公開です。
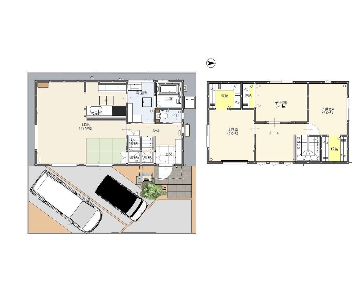
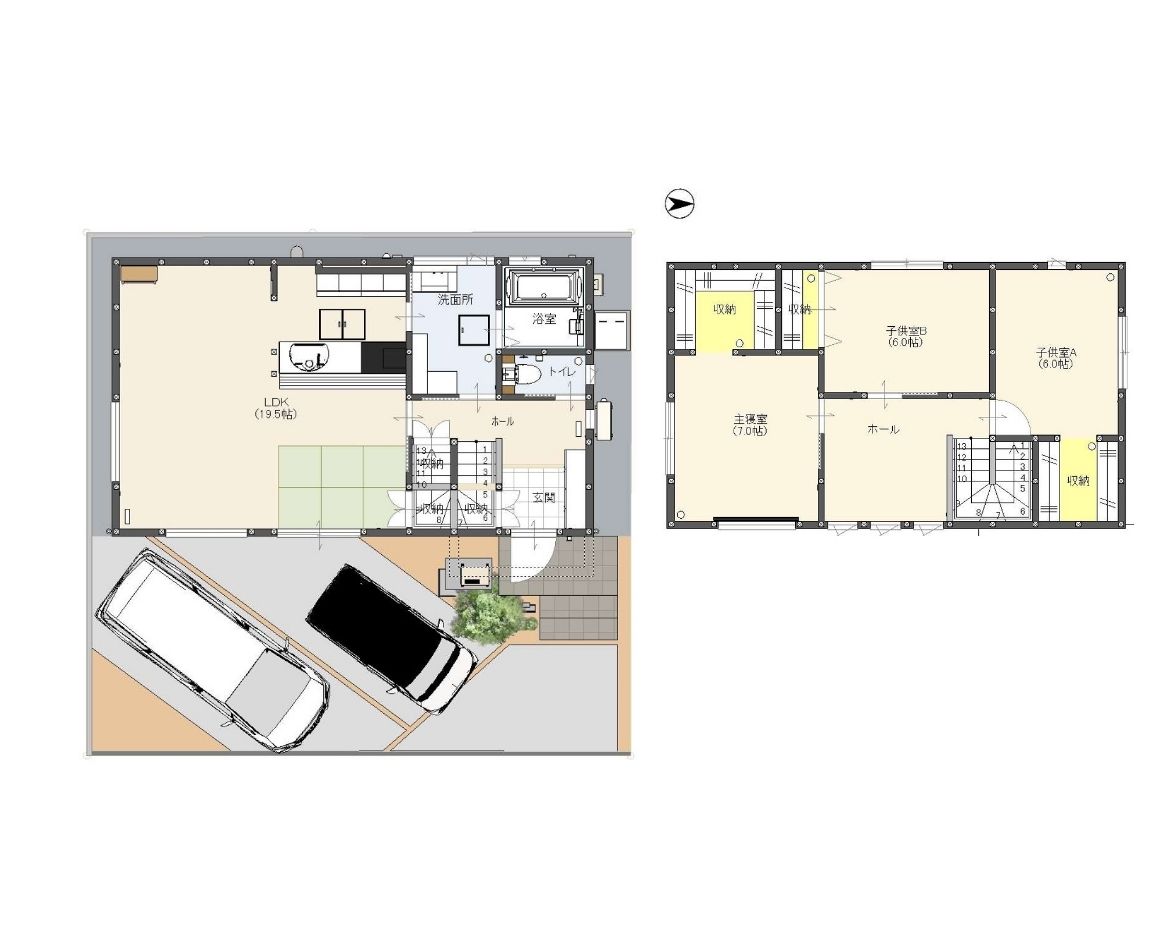
見どころ Point
OPENOPEN HOUSE【完成見学会】in亀岡市千代川町
亀岡市千代川町にて、待望の建売住宅がオープンいたします。
この機会に、理想の住まいを見つけるための特別な見学会へお越しください。

この機会に、理想の住まいを見つけるための特別な見学会へお越しください。

見学会では、最新の住宅デザインや機能を実際に体験することができます。
あなたの理想の家がどのように実現できるのか、具体的なイメージを持っていただける絶好のチャンスです。
キッチンやお風呂などの住宅設備から、家計に直結する太陽光パネルなどの電子機器まで、家族みんなが快適に過ごせる空間や仕組みを、実際に見て、触れて、感じてください。



【見学会のポイント】
・新しいモデルハウスの全貌を体感
・実際の生活シーンを想像できるレイアウト
・最新の省エネ設備やスマートホーム機能を体験
・専門スタッフによる丁寧な説明とアドバイス
・新しいモデルハウスの全貌を体感
・実際の生活シーンを想像できるレイアウト
・最新の省エネ設備やスマートホーム機能を体験
・専門スタッフによる丁寧な説明とアドバイス
【ご予約特典】
ウェブでのご予約の方には特別なプレゼントをご用意しています。ぜひお子様もご一緒に、ご家族でお越しください。
お急ぎの場合や、ご予約時間についてのご相談がありましたら以下の番号でも受付をしております。
>> TEL:0120-65-3388
「新しい家を持ちたいけれど、どこから始めればいいのかわからない…」そんな不安を抱えている方もご安心ください。私たちの専門スタッフが、あなたの疑問や不安に丁寧にお答えします。家づくりのプロセスをしっかりサポートし、安心して進められるようお手伝いします。
〈〈 Instagramにて施工事例、土地情報など公開しております! 〉〉
〈〈 Instagramにて施工事例、土地情報など公開しております! 〉〉
イベントマップ
京都府亀岡市千代川町小林前田
キャンペーン情報
●新規ご予約&ご来場特典
・はじめてのお家づくりに役立つ資料本一式
・QUOカード
イベント概要
| 開催日時 | 〜開催中 |
|---|---|
| 開催場所 | 京都府亀岡市千代川町小林前田 |
| イベント種類 | 完成見学会 |
| 会社名 | 株式会社 アサヒ |