三次市十日市西 2/22・23 完成見学会
広島
広島県三次市三次市十日市西
2025年02月22日(土)〜2025年02月23日(日)
予約可能日時
| 日 | 月 | 火 | 水 | 木 | 金 | 土 |
|---|---|---|---|---|---|---|
| 1- | 2- | 3- | 4- | 5- | 6- | |
| 7- | 8- | 9- | 10- | 11- | 12- | 13- |
| 14- | 15- | 16- | 17- | 18- | 19- | 20- |
| 21- | 22- | 23- | 24- | 25- | 26- | 27- |
| 28- | 29- | 30- | 31- |
見どころ Point
三次市十日市西
ちょうどいい距離感
今どき二世帯住宅
今どき二世帯住宅
ビルトインガレージ付きの
二世帯邸宅が完成しました。
二世帯住宅は“しあわせ”がいっぱい!
二世帯住宅は“しあわせ”がいっぱい!
5LDK
1F床面積 85.70㎡(25.92坪)
2F床面積 86.95㎡(26.30坪)
延床面積 172.65㎡(52.22坪)
延床面積 172.65㎡(52.22坪)
ZERO SECH ゼロセッチ
太陽光発電
太陽光発電
16kW+テスラ製蓄電池
搭載
1F
ガレージ(15帖)
ビルトインガレージで天候を
気にせず荷物運びがラクラク!
気にせず荷物運びがラクラク!
LDK(19.78帖)
リビング〜畳コーナー、ウッドデッキがつながる
開放的な間取りで、家族の集う心地よい空間。
開放的な間取りで、家族の集う心地よい空間。
キッチンの色使いは奥様のセンスが活きています。
あると便利な家事カウンターと
ダイニング収納
ダイニング収納
タタミコーナー(3帖)
子どもの遊び場や多目的に
使えるリラックス空間。
使えるリラックス空間。
SIC
シューズクローク+玄関収納で
玄関回りがすっきり片付きます。
玄関回りがすっきり片付きます。
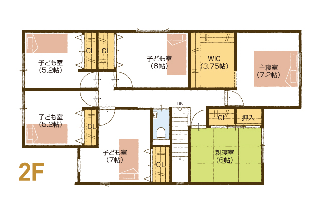
2F
子ども室(5.2帖)×2+6帖+7帖
独立した子ども室は
プライバシーもしっかりと
確保してくれます
プライバシーもしっかりと
確保してくれます
WIC(3.75帖)
衣類~季節のものまで
収納力バツグンの
ウォークインクローゼット♪
収納力バツグンの
ウォークインクローゼット♪
主寝室(7.2帖)
一日の疲れを癒すくつろぎの主寝室。
ご予約は希望前日の午前中までにお願いします。
電話予約 0824-63-3100
電話予約 0824-63-3100
イベントマップ
広島県三次市三次市十日市西
キャンペーン情報

間取り図
イベント概要
| 開催日時 | 2025年02月22日(土)〜2025年02月23日(日) |
|---|---|
| 開催場所 | 広島県三次市三次市十日市西 |
| イベント種類 | 完成見学会 |
| 会社名 | 株式会社松岡工務店 |